0 bed I 0 bath I Buyer Enquiry Over $595,000 Inclusive of GST.
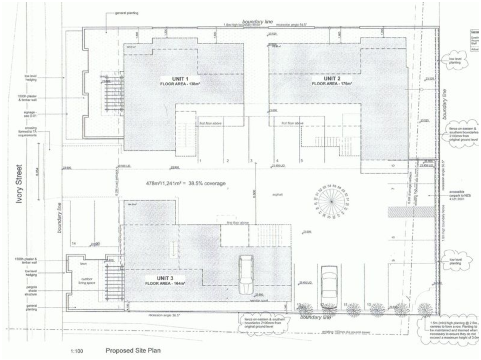
Here is your opportunity to purchase this profile Motel Development site with Resource Consent for 15 Units plus a fantastic 3 bedroom manager's unit.
Located in an area with a shortage of motels, makes purchasing this site a must do.
Features Include:
* 15 Motel Units
* 2 Storeys
* Resource Consent Issued
* Configuration of Units:
- Studio
- 1 Bedroom
- 2 Bedroom
* 3 Bedroom Manager's Residence
* Guest Laundry
* Car Parking
* Land Area 1242m
More properties wanted - phone now for a Free Appraisal and Market Update
Hayden Jones 021 222 0433
Phone me now for more information as opportunities like this are rare.
To download further information please copy and paste the following link into your web browser:
http://www.propertyfiles.co.nz/property/28ivory
*Please be aware that this information has been sourced from third parties including Property-Guru/ Christchurch City Council/ CERA/ ARCGIS/owner and we have not been able to independently verify the accuracy of the same. Land and Floor area measurements are approximate and boundary lines are indicative only.
